Opis nieruchomości
OFERTA NA WYŁĄCZNOŚĆ – NOWE DOMY - BLIŹNIAKI W ZAŁOMIU
Na sprzedaż nowy dom jednorodzinny w zabudowie bliźniaczej, położony w Załomiu, na kameralnym i zorganizowanym osiedlu domów jednorodzinnych.
Podstawowe informacje:
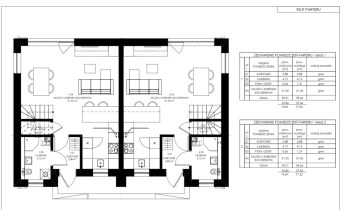
- Powierzchnia użytkowa: 75,87m²
- Powierzchnia całkowita: 77,32m²
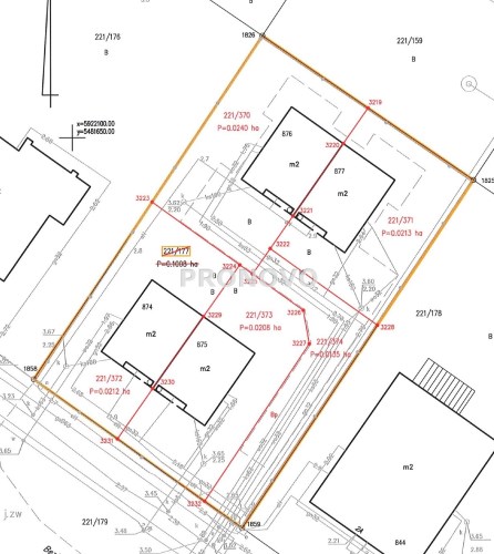
- Powierzchnia działki: ok. 240 m²
- Liczba miejsc parkingowych: 2
Rozkład pomieszczeń:
Parter:
- przestronny salon z jadalnią
- kuchnia w nowoczesnej zabudowie na wymiar, w pełni wyposażona w sprzęt AGD
- łazienka z WC (kabina prysznicowa)
- przedpokój
- spiżarnia
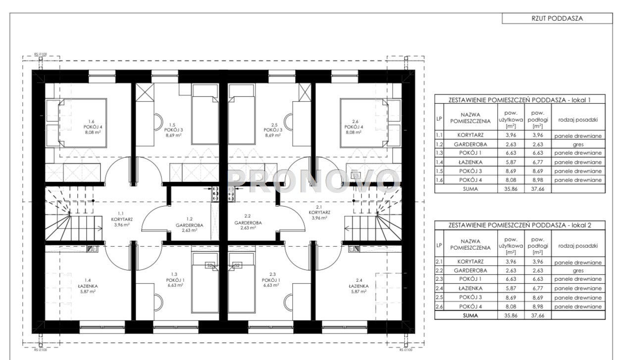
Piętro:
- trzy niezależne sypialnie
- łazienka z WC (wanna)
- garderoba
Dom wykończony w podwyższonym standardzie, z dbałością o detale:
- zabudowy stolarskie oraz schody wykonane na wymiar
- sprzęt AGD - renomowanej firmy Samsung
- panele winylowe klejone na parterze i piętrze
- drzwi wewnętrzne bezprzylgowe
- ekonomiczny piec gazowy kondensacyjny
- termostaty umożliwiające regulację temperatury w każdym pomieszczeniu
- instalacja alarmowa z czujnikami
- instalacja centralnego odkurzacza z jednostką główną
- klimatyzacja: parter + sypialnie na piętrze
- dachówka ceramiczna, szkliwiona
Izolacje wpływające na niskie koszty ogrzewania:
- elewacja: styropian 20 cm
- poddasze: wełna mineralna 25 cm
- okna trzyszybowe, nowej generacji
Zagospodarowanie terenu:
- teren wyrównany, wykonana niwelacja
- taras wybrukowany
- działka ogrodzona z boków, tyłu oraz pomiędzy ogródkami
- furtka oraz wydzielone miejsce na pojemniki na odpady
- wyprowadzona woda ogrodowa
Wszystkie media z sieci miejskiej:
- kanalizacja
- woda
- prąd
- gaz
- kanalizacja sanitarna - studnie chłonne
Informacje dodatkowe:
- cena zawiera podatek VAT
- kupujący zwolniony z podatku 2% PCC (rynek pierwotny)
- termin zakończenia inwestycji, do końca kwietnia 2026r.
Bardzo atrakcyjna lokalizacja w otoczeniu nowej zabudowy jednorodzinnej:
- spokojna, zielona okolica
- dojazd drogą utwardzoną
- przystanek autobusowy ok. 600 m
- szybki dojazd do obwodnicy A6
Aktualna oferta:
Pierwszy etap:
Budynek 2: segment 1 - 969.000 PLN - aktualny / gotowy - działka 240m2
segment 2 - 949.000 PLN - aktualny / gotowy - działka 212m2
Drugi etap:
Budynek 1: segment 1 - 949.000 PLN - aktualny - termin realizacji czerwiec 2026r. - działka 212m2
segment 2 - 949.000 PLN - aktualny - termin realizacji czerwiec 2026r. - działka 208m2
*podane ceny, są kwotami brutto.
Nota prawna
Opis oferty zawarty na stronie internetowej sporządzany jest na podstawie oględzin nieruchomości oraz informacji uzyskanych od właściciela, może podlegać aktualizacji i nie stanowi oferty określonej w art. 66 i następnych K.C.