Kamień Pomorski (gw), Połchowo

Działka na sprzedaż

Opis nieruchomości

Działka budowlana o powierzchni 9401m2 przy wodzie w Połchowie gm. Kamień Pomorski.

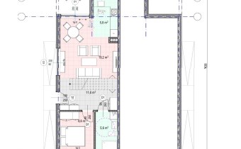
Dla działki są wydane warunki zabudowy na 10 domów mieszkalnych z czego planuje się budowę 8 domów 2 lokalowych i 2 jednolokalowe. W zdjęciach pokazany plan zagospodarowania terenu oraz wizualizacje proponowanych domów. Teren sąsiaduje z działką administrowaną przez Urząd Morski w Szczecinie, która stanowi już obszar wodny czyli praktycznie działka jest w pierwszej linii od wody.
W pobliżu są tereny objęte miejscowym planem zagospodarowania przestrzennego z przeznaczeniem na budownictwo mieszkaniowe, usługi turystyczne w tym plaża na działkach gminnych.
Przy plaży w miejscowym planie jest możliwość budowy pirsów do cumowania łodzi.
Teren działki jest częściowo zadrzewiony (stare drzewa), drobne drzewa i krzewy już są usunięte, w miarę płaska, nie ogrodzona.
Z działki widok na sąsiadującą za wodą Wyspę Chrząszczewską.
W sąsiedztwie pensjonat, zabudowania starsze wsi Połchowo oraz nowo powstające domy i budynki rekreacyjne.
Z mediów dostępny przy działce jest prąd. Woda z własnego ujęcia (do chwili wybudowania wodociągu), szambo (do wybudowania kanalizacji).
Dojazd drogą asfaltową.
Najbliższe większe miejscowości to Kamień Pomorski i Wolin.
Podana cena jest ceną netto, należy doliczyć VAT.


 

Jeśli macie Państwo nieruchomości do sprzedaży zgłoście do nas a zaproponujemy atrakcyjne warunki współpracy. Nasze biura skupione pod marką Pronovo gwarantują wysoki poziom obsługi i profesjonalizm.

W treści naszej umowy pośrednictwa bierzemy odpowiedzialność za wszelką pomoc, doradztwo i konsultacje na każdym etapie transakcji w tym informowanie o ważnych aspektach związanych z zawieraniem umowy sprzedaży nieruchomości, uprawnień osób trzecich do nabycia nieruchomości, pomoc w regulowaniu stanu prawnego nieruchomości itp. W związku z czym bierzemy na siebie dużą odpowiedzialność. Biuro pobiera wynagrodzenie.
 

Piotr Kordus- właściciel Pronovo Kordus Nieruchomości

Pośrednik w Obrocie Nieruchomościami licencja 11433

Kom. +48. 500. 103. 180.

Zapraszamy na stronę firmową Pronovo

Nota prawna

Opis oferty zawarty na stronie internetowej sporządzany jest na podstawie oględzin nieruchomości oraz informacji uzyskanych od właściciela, może podlegać aktualizacji i nie stanowi oferty określonej w art. 66 i następnych K.C.

Szczegóły oferty

Symbol oferty PKN-GS-1059
Powierzchnia 9 401,00 m²
Przeznaczenie działki budowlana
Standard
Wymiary działki 40x110 m
Stan prawny AWZ (akt wł. ziemi)
Zagosp. działki niezagospodarowana
Ukształtowanie działki płaska
Kształt działki nieregularny
Ogrodzenie działki brak
Gaz brak
Woda brak
Dojazd asfalt
Otoczenie rzeka
Odl. do przedszkola [m] 8 000 m
Prąd w ulicy
Kanalizacja brak

Lokalizacja

Kalkulator kredytowy

PLN
%
Wysokość raty

Kalkulator kosztów

PLN
PLN
PLN
PLN
PLN
PLN
%
PLN
Podatek od czynności cywilno-prawnych
Taksa notarialna (opłata notarialna)
VAT od taksy notarialnej (opłaty notarialnej)
Wniosek do WKW
VAT od wniosku do WKW
Prowizja agencji nieruchomości
VAT od prowizji agencji nieruchomości
Wypisy aktu notarialnego - około
RAZEM (cena + opłaty)

Podobne oferty

działka na sprzedaż - Kamień Pomorski (gw), Połchowo

działka na sprzedaż

Kamień Pomorski (gw), Połchowo
  23 000,00 m2 50,00 zł/m2
działka na sprzedaż - Kamień Pomorski (gw), Połchowo

działka na sprzedaż

Kamień Pomorski (gw), Połchowo
  20 000,00 m2 60,00 zł/m2

Napisz do nas

Proszę wypełnić to pole
Proszę wypełnić to pole
Proszę wypełnić to pole
Proszę wypełnić to pole
Trwa wysyłanie...

Ta strona wykorzystuje pliki cookies w celach statystycznych oraz w celu dostosowania naszych serwisów do indywidualnych potrzeb klientów. Zmiany ustawień dotyczących plików cookie można dokonać w dowolnej chwili modyfikując ustawienia przeglądarki. Korzystanie z tej strony bez zmian ustawień dotyczących cookies oznacza, że będą one zapisane w pamięci urządzenia.

rozumiem