Szczecin, Gumieńce

Działka na sprzedaż

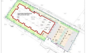
Opis nieruchomości

Sprzedam gotowca inwestycyjnego na Gumieńcach.
Działka z MPZP oraz pełną dokumentacją przygotowaną do budowy 20 mieszkań, 1050PUM.
 Dojazd drogą asfaltową,

Podana cena jest ceną Netto. 

Nota prawna

Opis oferty zawarty na stronie internetowej sporządzany jest na podstawie oględzin nieruchomości oraz informacji uzyskanych od właściciela, może podlegać aktualizacji i nie stanowi oferty określonej w art. 66 i następnych K.C.

Szczegóły oferty

Symbol oferty LH1-GS-41811
Powierzchnia 1 293,00 m²
Przeznaczenie działki mieszkaniowa
Stan prawny AWZ (akt wł. ziemi)
Zagosp. działki niezagospodarowana
Ukształtowanie działki płaska
Kształt działki kwadrat
Ogrodzenie działki brak
Gaz w ulicy
Woda brak
Dojazd asfalt
Otoczenie działki zabudowane
Położenie blisko centrum
Prąd w ulicy
Kanalizacja w pobliżu

Kalkulator kredytowy

PLN
%
Wysokość raty

Kalkulator kosztów

PLN
PLN
PLN
PLN
PLN
PLN
%
PLN
Podatek od czynności cywilno-prawnych
Taksa notarialna (opłata notarialna)
VAT od taksy notarialnej (opłaty notarialnej)
Wniosek do WKW
VAT od wniosku do WKW
Prowizja agencji nieruchomości
VAT od prowizji agencji nieruchomości
Wypisy aktu notarialnego - około
RAZEM (cena + opłaty)

Podobne oferty

działka na sprzedaż - Szczecin, Pogodno

działka na sprzedaż

Szczecin, Pogodno
  2 186,00 m2 640,44 zł/m2
działka na sprzedaż - Szczecin, Dąbie

działka na sprzedaż

Szczecin, Dąbie
  8 000,00 m2 211,25 zł/m2
działka na sprzedaż - Szczecin, Zdroje

działka na sprzedaż

Szczecin, Zdroje
  6 266,00 m2 319,18 zł/m2
działka na sprzedaż - Szczecin

działka na sprzedaż

Szczecin
  3 207,00 m2 395,00 zł/m2

Napisz do nas

Proszę wypełnić to pole
Proszę wypełnić to pole
Proszę wypełnić to pole
Proszę wypełnić to pole
Trwa wysyłanie...

Ta strona wykorzystuje pliki cookies w celach statystycznych oraz w celu dostosowania naszych serwisów do indywidualnych potrzeb klientów. Zmiany ustawień dotyczących plików cookie można dokonać w dowolnej chwili modyfikując ustawienia przeglądarki. Korzystanie z tej strony bez zmian ustawień dotyczących cookies oznacza, że będą one zapisane w pamięci urządzenia.

rozumiem