Szczecin, Śródmieście, Jagiellońska

Mieszkanie na sprzedaż

Opis nieruchomości

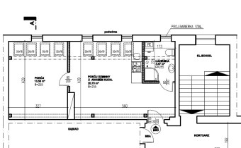
Do sprzedaży mieszkanie 2 pokojowe, z klimatyzacją, położone przy ul. Jagiellońskiej.

Adaptacja poddasza:
- pokój dzienny z aneksem kuchennym 20,70 m2,
- pokój 13,58 m2,
- łazienka 3,87 m2.

Mieszkanie o jednostronnej - południowej ekspozycji okien. Powierzchnia użytkowa wg. dokumentacji projektowej to 37,95 m2.

Lokal oddany będzie w standardzie deweloperskim z możliwością wykończenia lokalu pod klucz.

Standard: podłogi - płyta OSB oraz płyta ognioodporna, ściany i sufity wygładzone i
pomalowane na biało, rozprowadzone instalacje: elektryczna i wodno – kanalizacyjna. W kuchni i w łazience wyprowadzone, w zależności od projektu, wszystkie podłączenia pod zlewy, umywalki, wanny lub kabiny prysznicowe, pralki i płyty i piekarniki. Drzwi wejściowe antywłamaniowe, ognioodporne.

Ogrzewanie i chłodzenie lokalu - klimatyzator, ciepła woda - podgrzewacz elektryczny.

Podana cena jest ceną brutto, zawiera podatek VAT - kupujący nie płaci 2 % podatku PCC.

Polecam.

 

Nota prawna

Opis oferty zawarty na stronie internetowej sporządzany jest na podstawie oględzin nieruchomości oraz informacji uzyskanych od właściciela, może podlegać aktualizacji i nie stanowi oferty określonej w art. 66 i następnych K.C.

Szczegóły oferty

Symbol oferty NGK-MS-496
Powierzchnia 37,95 m²
Powierzchnia użytkowa 37,95 m²
Liczba pokoi 2
Piętro 4
Rodzaj budynku kamienica
Technologia budowlana cegła
Standard
Liczba pięter w budynku 4
Stan lokalu deweloperski
Stan prawny Własność
Okna drewniane
Instalacje nowe
Balkon brak
Widok na inne budynki
Gaz brak
Woda tak-podgrzewacz elektryczny
Dojazd asfalt
Otoczenie centrum miasta
Ogrzewanie inne
Usytuowanie jednostronne
Klucze tak

Lokalizacja

Kalkulator kredytowy

PLN
%
Wysokość raty

Kalkulator kosztów

PLN
PLN
PLN
PLN
PLN
PLN
%
PLN
Podatek od czynności cywilno-prawnych
Taksa notarialna (opłata notarialna)
VAT od taksy notarialnej (opłaty notarialnej)
Wniosek do WKW
VAT od wniosku do WKW
Prowizja agencji nieruchomości
VAT od prowizji agencji nieruchomości
Wypisy aktu notarialnego - około
RAZEM (cena + opłaty)

Podobne oferty

mieszkanie na sprzedaż - Szczecin

mieszkanie na sprzedaż

Szczecin
4 pokoje 114,00 m2 3 640,35 zł/m2
mieszkanie na sprzedaż - Szczecin, Centrum

mieszkanie na sprzedaż

Szczecin, Centrum
4 pokoje 103,00 m2 4 466,02 zł/m2
oferta specjalna
mieszkanie na sprzedaż - Szczecin

mieszkanie na sprzedaż

Szczecin
3 pokoje 89,82 m2 5 010,02 zł/m2
mieszkanie na sprzedaż - Szczecin, Dąbie

mieszkanie na sprzedaż

Szczecin, Dąbie
2 pokoje 41,34 m2 11 600,00 zł/m2

Napisz do nas

Proszę wypełnić to pole
Proszę wypełnić to pole
Proszę wypełnić to pole
Proszę wypełnić to pole
Trwa wysyłanie...

Ta strona wykorzystuje pliki cookies w celach statystycznych oraz w celu dostosowania naszych serwisów do indywidualnych potrzeb klientów. Zmiany ustawień dotyczących plików cookie można dokonać w dowolnej chwili modyfikując ustawienia przeglądarki. Korzystanie z tej strony bez zmian ustawień dotyczących cookies oznacza, że będą one zapisane w pamięci urządzenia.

rozumiem